L'Hotel Plie


L'Hotel Plie; The Folded Hotel
Group: Domercant
Programs Used: Rhino, V-Ray, Illustrator, Photoshop, InDesign,
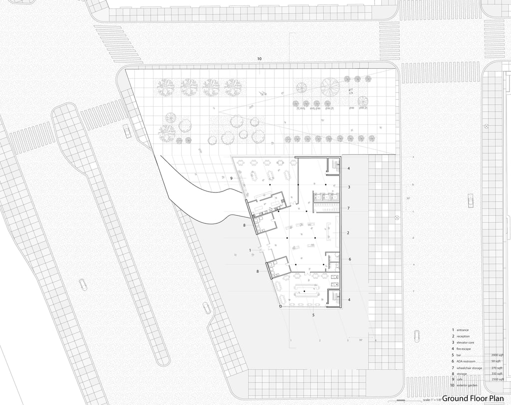
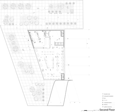
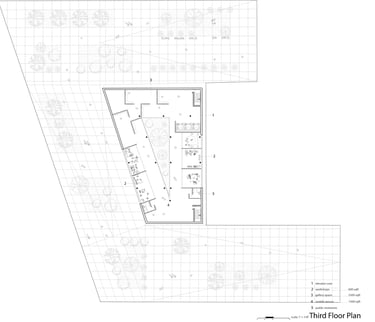
Welcome to the Chelsea Craft Guild, a dynamic cultural destination at the southern edge of Manhattan’s Chelsea neighborhood. This project centers on a non-profit organization offering year-long residencies to global artisans, supporting craft through collaboration, education, and gallery exhibition. A Boutique Hotel on site funds the Guild and immerses guests in a unique art-focused experience, with direct access to the High Line and surrounding cultural landmarks. Public-facing amenities like a street-level Café and acclaimed Restaurant further activate the space, blending community, cuisine, and creativity. The master plan reconnects Chelsea’s traditional block pattern, replaces 14th Street Park with a self-sustaining landscape, and introduces a 24-hour public plaza to unite street life with elevated pathways, embodying a bold fusion of craft, culture, and urban design.


















