Ti Kay

Ti Kay; Microhome
Group: Domercant, Mercado, Renato, Faltas
Programs Used: Rhino, V-Ray, Illustrator, Photoshop, InDesign,
Over the summer, I collaborated with three architecture students to take initiative on a self-directed competition project outside of school. After thoroughly reviewing the com petition brief, we strategized a clear plan of action, defined our goals, and assigned roles based on each member’s strengths. Working independently, we met regularly to develop ideas, share research, and refine our approach. The competition involved identifying a location in need of resilient housing, followed by designing a sustainable micro-home tailored to the site’s unique environmental and social conditions.
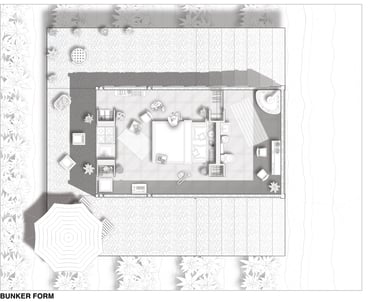
The resilient microhome initiative builds disaster-resistant micro homes in Les Cayes, Haiti, to address the need for stable housing in a region prone to natural disasters. using local bricks for strong foundations and the dri-kingspan system for insulated, moisture-resistant walls, these homes offer superior durability. movable walls and roofs provide flexible protection and ventilation. this initiative aims to break the cycle of housing vulnerability by creating sustainable, resilient homes that help residents withstand and recover from disasters.